![]() |
||
| 現代簡約-潤錦城-四室兩廳-124㎡ | ||
| 設計師 | 李雪 | 人氣 4412 |
![]() |
||
| 美式-旭日上城-四室兩廳-190㎡ | ||
| 設計師 | 付磊 | 人氣 8410 |
![]() |
||
| 簡美-萬江共和新城-兩室一廳-86㎡ | ||
| 設計師 | 杜如萍 | 人氣 7751 |
一般來說,100平米以下的戶型,對于功能的設計要求更高,只有合理動線安排,才能把小空間打造的更有魅力!
本期錦華杯設計大賽作品展,就帶你一起走進錦華設計專家打造的、獨屬于小戶型的“家世界”!
一家一說
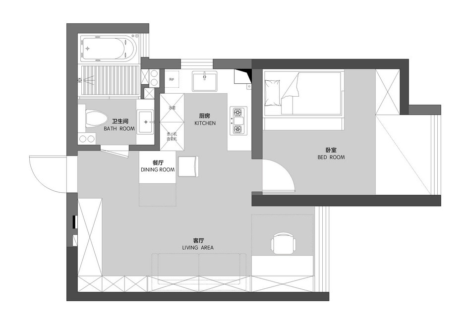
案例地址:亞東城
案例面積:50㎡
案例戶型:一室一廳一衛
設計風格:現代簡約


▲查看平面圖及原始圖!
雖然本案是一個只有50平的公寓,但該有的功能全部具備,比如大型綜合儲物柜、全景書房、觀景飄窗閱讀臺、強大功能的廚房。


▲白色作為空間主色調,它具備強大的包容性,不論色彩、材質、風格,“白”都可以和諧地共處。

▲廚房外圍墻體砸掉,開放式廚房增加空間和亮度!

▲mini款的投影儀,恰好在沙發上方的吊頂內、手動式小床巧妙置身在書柜內、而冰箱則完全躲在了高柜中……

▲客廳與陽臺打通,兼具書房與客廳功能,頂面吊柜增加整體收納!

▲衛生間墻體重砌,整體削薄增加空間及收納。

▲臥室空間選購雙層床,使得居住人口增加!
一個兼具書房與臥室的功能間改造,一個能睡3人的臥室,一個收藏了大型視聽投影的多功能客廳,在設計師的完美改造下100%實現!
一家一說
案例地址:迎江園
案例面積:70㎡
案例戶型:一室一廳一衛
設計風格:北歐


▲左右滑動,查看本案平面圖及原始平面圖!
這是本案設計師為自家孩子升學購入的一套學區房,也是我們常說的“老破小”房子。

▲進門的穿鞋凳和全身鏡極具實用性!

▲因房屋面積有限,所以客餐廳之間并未作嚴格的劃分!


▲弱化了客廳面積,取而代之的便是餐廳面積的最大化和功能的多重化!

▲廚房以白色調為主,并選用了經典的小白磚,所以即使面積有限,卻格外清爽整潔!


▲衣帽間,以DIY金屬貨架形式代替木材質,提高環保等級,滿足盡快入住需求!



▲為擴大臥室面積,便將主臥雙陽臺中的一個納入臥室!
整個臥室空間以白色調為主,輔以恰到好處的醬紅色、木色等,再搭配以其他裝飾品等,讓整個空間看起來既寬敞舒適又格調十足。

▲兒童房的設計簡約大方又不失童趣!

▲衛生間里,來自IKEA的獨立衛浴柜美觀且實用!
錦華高級設計師王新

榮譽:
江蘇錦華裝飾高級設計師/CIID中國建筑室內設計學會會員/中國建筑與文化陳設委會員/南京室內設計學會會員……
主要項目:
騁望云邸/萬達茂/奧克斯鐘山府/招商語山/保利禮墅/保利羅蘭春天/保利紫晶山/東墅山莊/楓情水岸/復地御鐘山/高科榮境/梅花山莊……
一家一說
案例地址:百家湖國際公寓
案例面積:60㎡
案例戶型:單身公寓
設計風格:現代輕奢


▲左右滑動,查看本案平面圖及結構圖!
本案是W美眉第一套單身公寓,一個只屬于自己的小天地。房子雖然不大,但是她也有自己要求,一直和設計師強調,不要因為房子小,就不上心的哦。


▲室內采光極好,公共領域和臥室都能享受到陽光的溫撫!

▲地面運用法國18世紀的凡爾賽拼接設計,將簡潔和優雅融合在一起!



▲飽和度極高的綠色沙發和溫暖熱情的紅色裝飾畫,形成大膽的撞色,成為整個空間的亮點!

▲中國紅小冰箱不落俗套!
廚房敞開的設計,讓空間顯得沒有那么的局促,上方的壁櫥大大增加了收納功能。

▲休息的空間應該給人安靜的視覺效果,所以臥室里,不管是床品、裝飾畫亦或其他飾品,都以素色為主。

▲衛生間素雅干凈,經典的格子瓷磚,文藝且小資,是業主的心頭好!
錦華主案設計師汪盼盼

榮譽:
南京市室內設計師協會會員/江蘇省室內設計師協會會員/2017年榮獲“第十屆大金內裝設計大賽”全國優秀獎/2016年新中源杯三等獎……
主要項目:
花神美境/鳳凰和熙/典雅大廈/銀城東苑/林景雅園/景尚佳園/羊山湖花園/旭日上城/雍福龍庭/威尼斯水城/南航攬翠苑/中海國際……
一家一說
案例地址:龍湖春江紫宸
案例面積:70㎡
案例戶型:兩室一廳一衛
設計風格:北歐
本案是一套單身公寓房,業主是個可愛的姑娘,喜歡旅行,喜歡攝影,喜歡美食,喜歡一切有趣而迷人的事物。

▲原戶型布局沒有玄關區域,但為了入戶方便,設計師在門口設計了鞋柜,同時也給了冰箱一個“容身”空間!

▲客廳區域整體內縮,改造出一個落地式陽臺!

▲受面積的限制,客餐廳采取大開間設計,中間沒有任何隔斷,使客餐廳之間自然連結過渡!


▲色調以黃色、灰色、木色為主,溫暖又活潑。布藝、亞麻、木質等天然材料的運用,又為空間平添了一種慵懶的繾綣!
縱然空間布局開放,但通過這種連續而統一的色彩、材質和塊面形式,使得彼此之間相互映襯,各有呼應,營造出續續相生、情味愈出的空間特質。

▲明黃色谷倉門,是空間的視覺亮點之一,它作為廚房和客餐廳的分界線,既有效地節省了空間占比,又十分具有趣味性!

▲餐廳很簡單,一張桌子兩張椅,白色的吊燈灑落一桌燈光,溫暖了歸人的心!

▲廚房雖小,功能俱全!
客廳以清新的白色護墻板搭配溫馨的米色墻紙,豐富了整個空間層次。電視背景墻處做了一扇隱形門,使得整個空間更加具有完整性和對稱性。


▲臥室頂面和墻壁刻意保持干凈,藝術感的裝飾畫和恣意舒展的龜背竹給予空間一種簡潔、童趣和復古的調性!

▲衛生間雖然不大,但設計師還是做了簡單的干濕分離,同時還能放下洗衣機!
錦華主案設計師徐媛

主要項目:
天正湖濱/西堤國際/翠屏國際/凱潤金城/星雨華府/雅居樂……
一家一說
案例地址: 弘陽愛上花園
案例面積:85㎡
案例戶型: 三室兩廳一衛
設計風格:北歐

▲本案原始平面圖!
一個剛剛畢業的外地人兒,耗盡了心血在南京擁有了一個對她來說可以稱之為家的地方,這片85平的土地,是父母的給予,是對未來的憧憬,是她認為世界上最溫暖的地方。

▲本案面積不大,但南北通透,戶型規整,所以戶型上并未作太大的調整!



▲柔美的線條、利落的陳設,整個空間安靜又美好!



▲一幅充滿藝術感的畫對空間起到畫龍點睛的作用!
以pu線條代替造價甚高的護墻板,將其直接貼于墻面,增加了空間的層次感,其余的地方則是用不同色彩的墻紙體現空間的活潑性,呈現出空間本身的質感與美感,白色和灰色的組合又使得整個空間安靜又舒適。

▲將廚房的單開門換成雙開移門,使空間更加透亮!


▲綠色調的背景墻讓素雅的空間充滿活力,夢中好似也彌漫著自然味道!

▲看似簡潔的臥室卻充滿自己的設計語言!

▲盥洗區域與衛生間分離,更方便又實用!
錦華主案設計師王旭敏

榮譽:
中國室內設計師協會會員/江蘇省室內設計師協會會員/2013年度華耐杯室內設計作品優秀獎/2016年中國設計星-南京設計星獎……
主要項目:
蘇寧睿城/保利香檳國際/星雨華府/金地自在城/融僑中央花園/西堤國際/濱江壹號/鄭和國際/萬山庭院/香山湖一號/雅居樂濱江國際……
一家一說
案例地址: 鳳悅西園
案例面積:88㎡
案例戶型:兩室兩廳
設計風格:現代北歐
本案業主是一位儒雅單身男,在生活品質上有很高的要求。

▲次臥面積縮小了一定的比例后,客廳便更加寬敞通透!



▲因面積有限,所以客廳統一采用小體積家具,避免視線上的壓抑。不同顏色、材質、造型的和諧碰撞,使得空間更立體,更有層次關系。


▲把廚房改造成開放式的,與餐廳結合一體,這樣同樣的的空間下,可以多出一組收納柜子,更實用!
將陽臺空間納入室內,但因為原陽臺的梁無法拆除,如果將其全部遮蓋,客廳的整體高度會降低,設計師機智地做了一個美式經典的格子頂,美觀實用,然后加已線條做出層次使客廳空間看起來高挑。

▲這一面清新的背景墻在空間中起到了畫龍點睛的作用!

▲將角落區域加以合理利用,造就了這一方工作區、閱讀區!

▲干濕分離的衛生間一定程度上減輕了家務量,這對于單身男士來說是十分值得高興的!
錦華主案設計師魏丹

主要項目:
威尼斯水城/復地新都國際/世茂外灘/中電頤和家園/大地伊利亞特灣/保利梧桐雨/高科榮譽……
一家一說
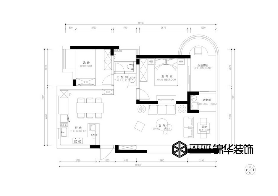
案例地址: 金陵灣
案例面積:88㎡
案例戶型:兩室兩廳一衛
設計風格:日式簡約


▲左右滑動,查看本案平面圖及結構圖!
考慮到戶型南北通透,采光較好,在空間中沒有做特別大的改造變動,而是在儲藏等功能上做了不少改動。


▲客廳大面積使用木飾面板作為背景,干凈簡潔又不失質感!

▲淺灰色布藝沙發為空間增添一抹平和的色彩!

▲整個空間從墻面到地面,均為最天然樸實的材料!
大量的木色作為空間主打基礎色,以淺灰色和藍色為輔助色。嚴謹安靜的色彩,讓空間展現出優雅干凈之態,頗有東方禪思禪韻。


▲吧臺將餐廳區域與廚房區域隔而不斷,讓空間呈現出不同的層次感,沒有過多阻擋,廚房的光線更加明亮!

▲主臥空間依然延續整體空間用灰色作為輔助色,形成統一的風格!
主臥的裝飾更偏向舒適簡單,衣柜為現場定制,家居產品全部選用原木風格。用心的設計,總是讓人驚喜。


▲陽臺制作了擱架書桌,業主偶爾回家時,在臥室也能滿足看書或辦公的需要!

▲擋水石作為干濕分區的隔斷,讓狹小的衛浴空間顯得更寬敞!
錦華主案設計師徐玉倩

榮譽:
中國裝飾建筑協會注冊設計師/南京室內設計協會會員/2014年南京家居視覺優秀獎/2015年華耐杯設計大賽三等獎/2016年江蘇室內優秀作品獎……
主要項目:
世茂外灘/中電頤和府邸/蘇寧朝陽府/深業濱江半島/上海路/中海鳳凰熙岸/威尼斯水城/蘇寧濱江壹號/羊山湖花園/碧桂園/美林墅/棲園……

江蘇家裝示范品牌
代表地區優秀設計聲音
集28年工程管理經驗之大成
省時、省力更省心
| 走進錦華 | 設計團隊 | 作品列表 | 戶型解析 | 裝修百科 |
關注錦華公眾號
|
瀏覽手機官網 |
全國熱線 025 86550815 |
||||||||||
| 新聞列表 | 錦華文化 | 堂杰國際設計 | 1865旗艦店 | 極簡 | 中古 | 秦淮金茂府 | 常見問題 | ||||||||||
| 全國分公司 | 錦華招聘 | 河西旗艦店 | 鼓北旗艦店 | 法式 | |||||||||||||
| 錦華簡介 | 聯系我們 | 城東旗艦店 | 江寧旗艦店 | 歐式古典 | 北歐 | 中交錦方 | |||||||||||
| 資質榮譽 | 法律聲明 | 江北旗艦店 | 江浦店 | 美式田園 | 新古典 | 溧水玖宸府 | |||||||||||