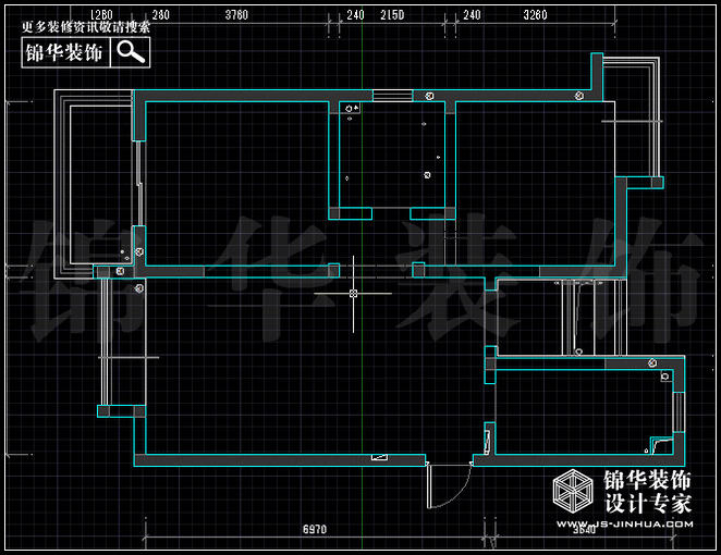
戶型名稱:中北品尚97平米
戶型優點:
1、客廳、餐廳比較通透、整體感好。
2、兩臥室空間方正、光線較好。
3、整套戶型功能劃分明朗、空間無浪費。
戶型缺點:
1、無書房功能間。
2、儲藏空間略少。
3、衛生間門對餐廳,略顯尷尬。
空間規劃要點:
一、規劃北陽臺為書房空間。
二、陽臺增加儲藏柜及吊柜
三、增加過道的隔斷與對門景統一形成進門景觀。
中北品尚97平米原始結構分析↓
中北品尚97平米平面布置分析↓
想了解更多中北品尚戶型資料么?
錦華裝飾準備了中北品尚各戶型全套設計方案、工程量報價、參考效果圖、主材搭配方案.歡迎您和網絡客服取得聯系,預約來店面詳細溝通.錦華裝飾,設計專家!.
江蘇家裝示范品牌
代表地區優秀設計聲音
集28年工程管理經驗之大成
省時、省力更省心
| 走進錦華 | 設計團隊 | 作品列表 | 戶型解析 | 裝修百科 |
關注錦華公眾號
|
瀏覽手機官網 |
全國熱線 025 86550815 |
||||||||||
| 新聞列表 | 錦華文化 | 堂杰國際設計 | 1865旗艦店 | 極簡 | 中古 | 秦淮金茂府 | 常見問題 | ||||||||||
| 全國分公司 | 錦華招聘 | 河西旗艦店 | 鼓北旗艦店 | 法式 | |||||||||||||
| 錦華簡介 | 聯系我們 | 城東旗艦店 | 江寧旗艦店 | 歐式古典 | 北歐 | 中交錦方 | |||||||||||
| 資質榮譽 | 法律聲明 | 江北旗艦店 | 江浦店 | 美式田園 | 新古典 | 溧水玖宸府 | |||||||||||