設計師:秦嶺(鼓樓旗艦店 主任設計師)
戶型詳情:錦繡濱江花園100平米 北歐風格
案例說明
空間因人而生,因人而動,也因人而誕生有意義的形式。本案設計師運用布局與場所本身的特性,在空間方寸之中融入其細膩的觀察和思考。室內以洗練、純潔的白、高貴優雅的灰色為主色調,配以清新的黃色,帶給居住者一種舒適感。在家具風格的選擇上,設計師摒棄了繁復,浮夸的家具,北歐風格提倡就是簡單、清爽,干凈,實木材質一直貫穿著北歐裝修的一個經典元素,地板更加不會例外。設計師考慮空間整體氛圍的營造,充分利用空間,也考慮到家具的儲物功能。整個北歐的方案呈現出給客戶優雅,舒適的感覺。
優缺點分析
優點:
兩房朝南,房型方正,動線合理。
缺點:
沒有陽臺,廚房較小,南北不通透。
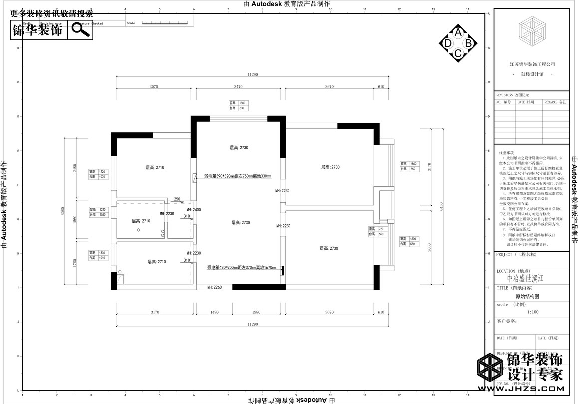
原始結構圖↓
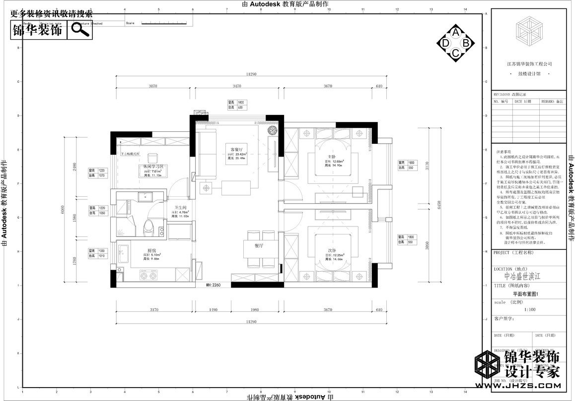
平面布置圖↓
鳥瞰圖↓
俯視圖↓
客戶效果圖↓
客戶效果圖↓
客戶效果圖↓
想了解更多錦繡濱江花園戶型資料么?
錦華裝飾準備了錦繡濱江花園各戶型全套設計方案、工程量報價、參考效果圖、主材搭配方案.歡迎您和網絡客服取得聯系,預約來店面詳細溝通.錦華裝飾,設計專家!.
江蘇家裝示范品牌
代表地區優秀設計聲音
集28年工程管理經驗之大成
省時、省力更省心
| 走進錦華 | 設計團隊 | 作品列表 | 戶型解析 | 裝修百科 |
關注錦華公眾號
|
瀏覽手機官網 |
全國熱線 025 86550815 |
||||||||||
| 新聞列表 | 錦華文化 | 堂杰國際設計 | 1865旗艦店 | 極簡 | 中古 | 秦淮金茂府 | 常見問題 | ||||||||||
| 全國分公司 | 錦華招聘 | 河西旗艦店 | 鼓北旗艦店 | 法式 | |||||||||||||
| 錦華簡介 | 聯系我們 | 城東旗艦店 | 江寧旗艦店 | 歐式古典 | 北歐 | 中交錦方 | |||||||||||
| 資質榮譽 | 法律聲明 | 江北旗艦店 | 江浦店 | 美式田園 | 新古典 | 溧水玖宸府 | |||||||||||