設計師:張小力(鼓北旗艦店 主任設計師)
戶型詳情: 深業濱江公寓139平米 新古典主義風格
案例說明
房間的處理顯示了一種現代化開闊的設計思路,主臥使用了與整套方案配套的設計手法,使用了較為簡潔的墻紙與魚骨拼接地板,相對于公共區域擁有的的時尚氣場,更為的靜謐與溫馨。兒童房的設計在設計師的引導下,就顯得較為大膽,因兒童房為兒童使用,而業主自愿把最大的臥室空間做成兩個孩子的房間,故設計師運用墻紙與家具的配合,為業主營造了一間具有童真色彩的的居室,與其他房間的紋樣顏色盡顯不同,頗為有趣。
優缺點分析
優點:
1、鑒于業主家庭常駐人口較少,便把主衛墻體打通,給到臥室最大的儲物空間,并且拓寬了主臥的入口,把利用率低的地方充分劃分到了動線較強的地區。
缺點:
1、此戶型原廚房空間太小,如果考慮做地暖,廚房的擺件會很狹窄。
原始結構圖↓

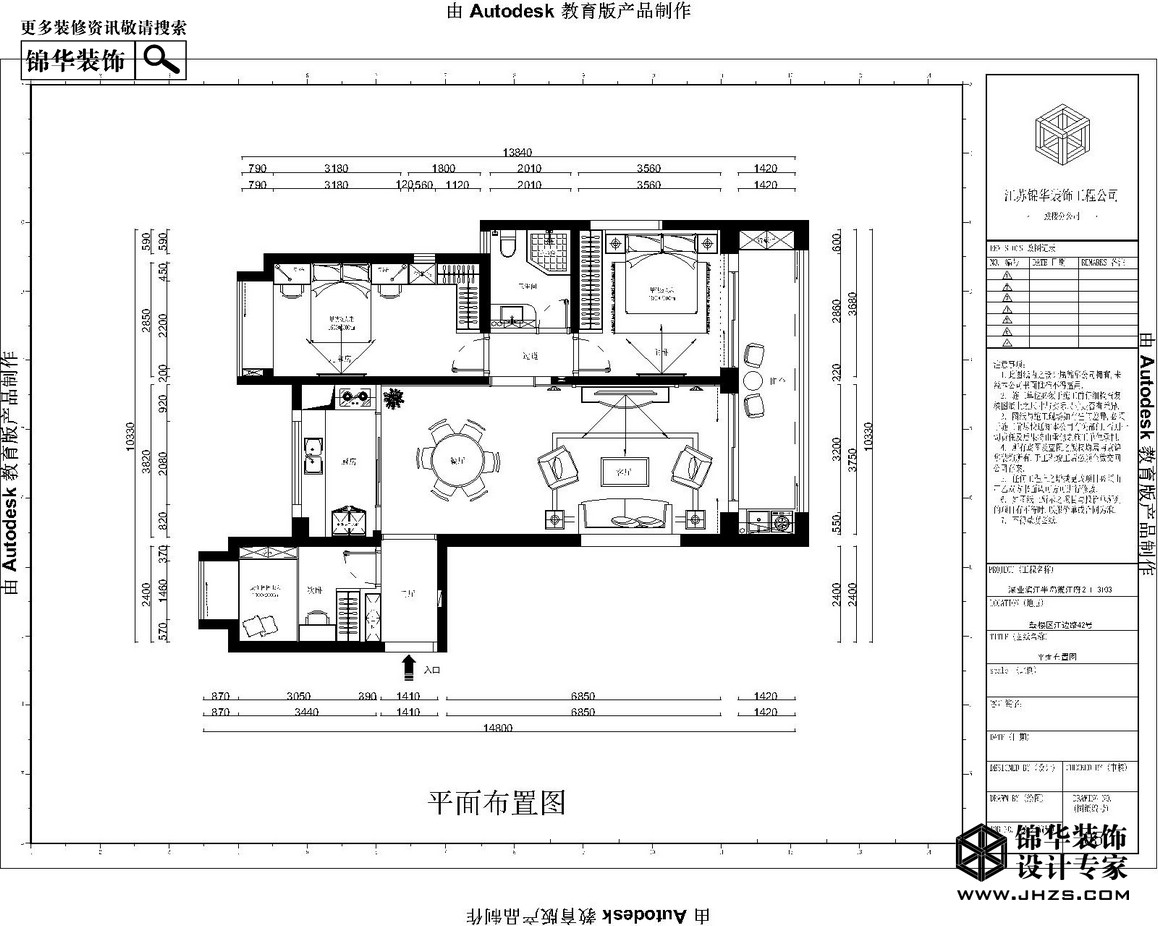
平面布置圖↓

效果圖↓

效果圖↓

效果圖↓

想了解更多深業濱江公寓戶型資料么?
錦華裝飾準備了深業濱江公寓各戶型全套設計方案、工程量報價、參考效果圖、主材搭配方案.歡迎您和網絡客服取得聯系,預約來店面詳細溝通.錦華裝飾,設計專家!.
江蘇家裝示范品牌
代表地區優秀設計聲音
集28年工程管理經驗之大成
省時、省力更省心
| 走進錦華 | 設計團隊 | 作品列表 | 戶型解析 | 裝修百科 |
關注錦華公眾號
|
瀏覽手機官網 |
全國熱線 025 86550815 |
||||||||||
| 新聞列表 | 錦華文化 | 堂杰國際設計 | 1865旗艦店 | 極簡 | 中古 | 秦淮金茂府 | 常見問題 | ||||||||||
| 全國分公司 | 錦華招聘 | 河西旗艦店 | 鼓北旗艦店 | 法式 | |||||||||||||
| 錦華簡介 | 聯系我們 | 城東旗艦店 | 江寧旗艦店 | 歐式古典 | 北歐 | 中交錦方 | |||||||||||
| 資質榮譽 | 法律聲明 | 江北旗艦店 | 江浦店 | 美式田園 | 新古典 | 溧水玖宸府 | |||||||||||